73 mq
2
1
Tortoreto Lido - Frontemare
Proponiamo in Vendita appartamenti bilocali e trilocali in fase di realizzazione, situati in una posizione UNICA , a due passi dal mare.
Questo immobile è la scelta ideale per chi desidera una casa al mare con accesso diretto alla spiaggia, al lungomare e alla splendida Tortoreto, una delle località di mare più rinomate.
Il complesso residenziale è composto da 14 unità abitative, tutte dotate di ampi spazi esterni vivibili.
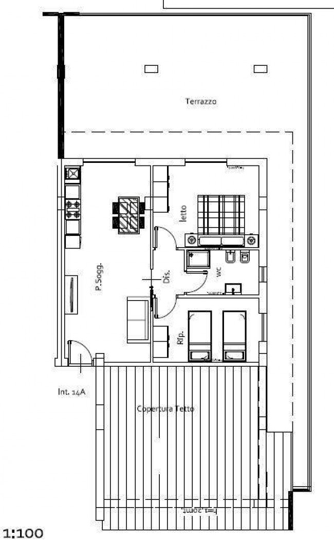
L'Appartamento proposto nell'annuncio si trova al terzo ed ultimo piano ed al suo interno gli ambienti sono così distribuiti:
ingresso su ampia zona giorno con cucina a vista, disimpegno, bagno finestrato con doccia e due camere da letto.
Il punto di forza dell'Appartamento è sicuramente il grande terrazzo di oltre 70 mq esposto ad est, da cui poter ammirare una splendida vista sul mare e sul litorale.
Un Oasi del piacere e unico nel suo genere.
Caratteristiche principali di questo edificio sono :
Costruzione di alta qualità
Impianto fotovoltaico condominiale
Cappotto termico per l'isolamento
Infissi ad abbattimento acustico e termico
Impianto di riscaldamento e raffreddamento con pompa di calore a bassi consumi energetici
Inoltre, vi è la possibilità di acquistare un box auto, una cantina e ulteriori posti auto.
Questa proposta rappresenta l'opportunità di vivere il mare a pieno, in un ambiente moderno e confortevole, con un ottimo investimento a lungo termine.
Contattateci per fissare una visita.
Ci trovate in Viale Mazzini n 95 Alba Adriatica (TE).
Potete contattarci ai numeri: Fisso: 0861738186 oppure tramite WhatsApp al 3755998109- 3281759028.
Per tutte le altre soluzioni seguite la nostra pagina Facebook , il nostro account Instagram ed il nostro canale YouTube.
Cliccate "Mi Piace" sulla pagina Facebook "Passione Immobiliare Alba Adriatica "

73 mq
2
1