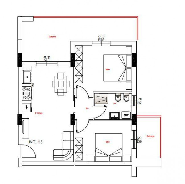
75 mq
2
1
NUOVI TRILOCALI A VILLA ROSA DI Martinsicuro
Se amate la cura dei dettagli, l'eleganza e la attenzione al risparmio energetico, ecco la soluzione giusta. A VILLA ROSA IN COSTRUZIONE NUOVO complesso edilizio , realizzate con la massima cura sia sotto il profilo architettonico che tecnologico , dotati di un'ottimo livello di finiture e cura dei particolari. Realizzati in base alle ultime normative di legge in classe energetica A : trilocali ( Soggiorno con cucina a vista , 2 camere e 1-2 bagni ) con terrazzo o giardino. Possibilità d'acquisto box auto o cantina. Tra le dotazione troviamo materiali e impianti tecnologici, al fine di ottenere la classe energetica A che permetterà ampi margini di risparmio. Contattateci per maggiori per fissare un appuntamento. Ci trovate in Viale Mazzini ,95 ad Alba Adriatica (TE) Potete contattarci ai numeri 0861738186 oppure tramite WhatsApp al 3755998109. Per tutte le altre soluzioni seguite la nostra pagina Facebook , il nostro account Instagram ed il nostro canale YouTube

75 mq
2
1